Kup mieszkanie bez prowizji - prosto od dewelopera!
Doradzimy Ci na każdym etapie zakupu - od wyboru mieszkania, przez kredyt, do finalizacji transakcji.
Porównaj z nami tysiące mieszkań deweloperskich w jednym miejscu!
Dostępne inne układy w tej inwestycji.
MIESZKANIE IDEALNE NA START DLA MŁODEJ PARY/RODZINY
Szukasz mieszkania w nowoczesnej okolicy, z licznymi udogodnieniami oraz świetną komunikacją? Ta opcja może być dla ciebie!
Zadzwoń i porozmawiajmy o twoich potrzebach.
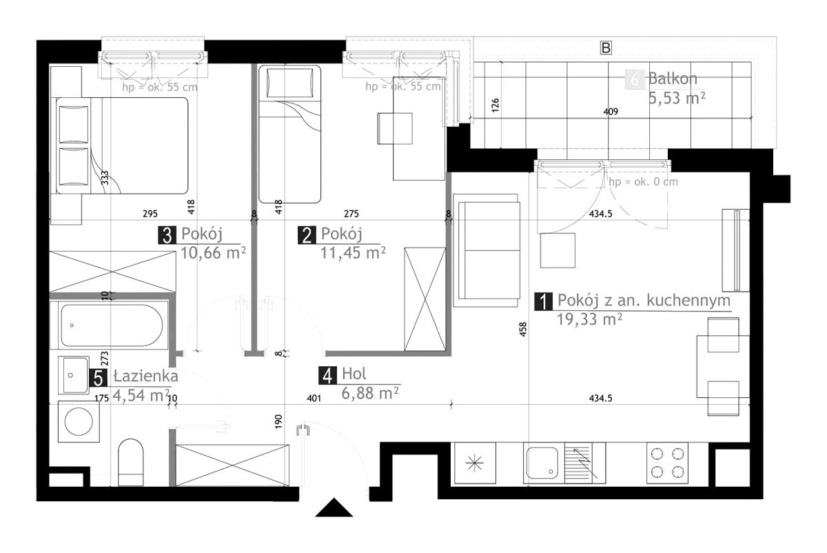
Oferta dotyczy lokalu na 2 piętrze z balkonem o powierzchni 9m2. Mieszkanie skierowane na południową stronę świata, pozwoli słońcu operować wewnątrz lokalu przez znaczną część dnia.
WYMIARY:
SALON Z ANEKSEM KUCHENNYM: 19,33m2
SYPIALNIA 1: 11,45m2
SYPIALNIA 2: 10,66m2
ŁAZIENKA: 4,54m2
HOL: 6,88m2
Funkcjonalnie zaprojektowana przestrzeń pozwoli mieszkańcom na rozkoszowanie się pierwszą nieruchomością w prężnie rozwijającej, prestiżowej okolicy.
LOKALIZACJA
Atrakcyjna lokalizacja, dobrze rozwinięta infrastruktura oraz szybki dostęp do trasy S8 sprawiają, że inwestycja łączy wygodę codziennego życia z dużym potencjałem inwestycyjnym. Przyszli mieszkańcy osiedla będą mieli w zasięgu ręki liczne sklepy, restauracje, punkty usługowe oraz placówki edukacyjne. Bliskość stacji metra Chrzanów, a także przystanków autobusowych i tramwajowych umożliwi sprawne przemieszczanie się do centrum oraz innych części Warszawy. W niedalekiej okolicy powstaną również kolejne stacje II linii metra - Lazurowa i Karolin.
Szukasz mieszkania i zależy Ci na szybkim, bezproblemowym zakupie?
Zajmiemy się wszystkim - od znalezienia idealnej nieruchomości aż po kompleksowe wykończenie „pod klucz”.
W naszej ofercie znajdziesz zarówno praktyczne kawalerki, jak i przestronne apartamenty - doskonałe dla rodzin ceniących komfort i wygodę.
Dodatkowo zapewniamy wsparcie doświadczonego doradcy kredytowego, który pomoże Ci przejść przez cały proces finansowania - sprawnie, bez stresu i zbędnych formalności.
Zapraszam do kontaktu telefonicznego od poniedziałku do soboty w godzinach 8:00-21:00
Nie zwlekaj! Dostępność najlepszych mieszkań jest ograniczona.
Zadzwoń, wyślij nam wiadomość na portalu lub wypełnij formularz kontaktowy, aby dowiedzieć się więcej i umówić się na prezentację.
Krystian Hojdeczko - Specjalista ds. rynku pierwotnego
Pomagam znaleźć idealne mieszkanie dopasowane do Twoich potrzeb.
Idealne dla młodej pary, rodziny/METRO CHRZANÓW
lokalizacja: Warszawa, Kopalniana
895 700,00 PLN
16 900,00 PLN
Dane szczegółowe
- Typ transakcji: sprzedaż
- Typ nieruchomości: Mieszkanie
- Lokalizacja: Warszawa Bemowo Chrzanów, Kopalniana
- Powierzchnia:53 m2
- Liczba pokoi: 3
- Rok budowy: 2027
- Piętro: 2 z 5
- Numer oferty: 459123
- Cena: 895 700,00 PLN
- Cena za m2: 16 900,00 PLN
Opis nieruchomości
Kontakt do opiekuna:
Platforma Mieszkaniowa S.A