⭐️ogródek ponad 130m | 4 pok. | 8700 m²!

lokalizacja: Łódź, Objazdowa

709 659,00 PLN

8 700,00 PLN

Opis nieruchomości

⭐️Cena promocyjna: 8700 zł/m²⭐️ (oferta limitowana)
Cena katalogowa: 840 171,00


4 pokoje z dużym ogrodem 130 m² | nowe osiedle | wysoki standard

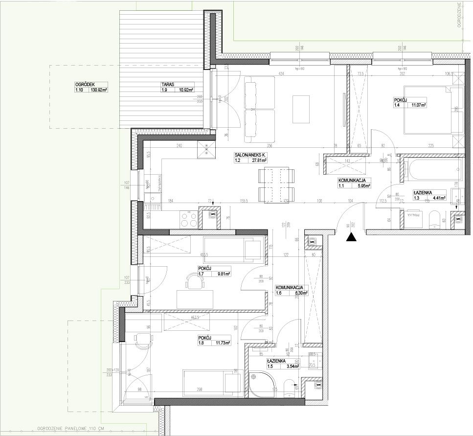
Na sprzedaż funkcjonalne mieszkanie 4 pokojowe o powierzchni 81,57 m², położone na parterze nowoczesnego apartamentowca. Dużym atutem nieruchomości jest prywatny ogród o powierzchni aż 130 m², który daje komfort domu z ogrodem przy wygodzie mieszkania w mieście.

Układ pomieszczeń jest bardzo praktyczny i zapewnia wygodną przestrzeń do życia zarówno dla rodziny, jak i osób pracujących z domu.

Układ mieszkania
• salon z aneksem kuchennym 27,89 m²
• sypialnia 11,17 m²
• pokój 10,01 m²
• pokój 11,81 m²
• łazienka 4,60 m²
• druga łazienka / WC 3,68 m²
• komunikacja 6,03 m² + 6,38 m²

Z salonu znajduje się wyjście na taras 10,92 m², który prowadzi do prywatnego ogrodu 130,77 m². To idealna przestrzeń na strefę relaksu, plac zabaw dla dzieci lub zieloną oazę w mieście.

Najważniejsze atuty
• duży ogród 130 m²
• mieszkanie 4 pokojowe o bardzo dobrym układzie
• dwie łazienki
• duże przeszklenia i dobre doświetlenie
• nowoczesna inwestycja
• stan deweloperski pozwalający na własną aranżację

Lokalizacja:
W bezpośrednim sąsiedztwie znajduje się Atlas Arena, oddalona o kilka minut spacerem. W niedużej odległości położone jest również Orientarium ZOO Łódź, jedno z największych i najnowocześniejszych w Europie. Bliskość Parku na Zdrowiu zapewnia dostęp do terenów zielonych, ścieżek spacerowych i rekreacyjnych.

Karolew to spokojna, zielona część miasta z bardzo dobrą komunikacją z centrum. W pobliżu znajdują się sklepy, punkty usługowe, szkoły, przedszkola oraz Dworzec Łódź Kaliska. Dogodny dojazd do trasy W-Z umożliwia szybkie połączenie z innymi dzielnicami miasta. W zasięgu kilku minut dostępne są przystanki tramwajowe i autobusowe.

Informacje dodatkowe:
planowany termin zakończenia budowy III kwartał 2026 r.
przekazanie kluczy do końca 2026 r.
garaż podziemny, winda
nowoczesna architektura i estetyczne części wspólne
Idealna propozycja dla singla, pary lub jako mieszkanie inwestycyjne pod wynajem.

POSIADAMY W OFERCIE CAŁĄ INWESTYCJĘ - RÓŻNE PIĘTRA, METRAŻE I UKŁADY MIESZKAŃ.

- 0% prowizji
- brak podatku PCC 2%

Nie czekaj - najlepsze mieszkania szybko znajdują nowych właścicieli. Napisz do nas przez portal lub skorzystaj z formularza kontaktowego, aby uzyskać więcej informacji i umówić się na prezentację.



Zapraszam do kontaktu:
Wioleta Czopur
Specjalista ds. nieruchomości
Kontakt telefoniczny możliwy od poniedziałku do piątku w godzinach 9:00-19:00 oraz sobota 10:00-14:00


Pomagam w znalezieniu mieszkania idealnie dopasowanego do Twoich oczekiwań.
Wyślij wiadomość przez portal - chętnie odpowiem na wszystkie pytania i udzielę szczegółowych informacji.


Wizualizacja przedstawia przykładową aranżację wnętrza. Informacja ma charakter orientacyjny i nie stanowi oferty w rozumieniu art. 66 §1 Kodeksu cywilnego.

Plan Nieruchomości

Kontakt do opiekuna:

Platforma Mieszkaniowa S.A

Wioleta Czopur
Nieprawidłowy adres E-mail
Administratorem Twoich danych osobowych jest Platforma Mieszkaniowa S.A. Kliknij i dowiedz się więcej o przetwarzaniu Twoich danych, w tym o Twoich prawach i celach przetwarzania.
Mapa