Promocja❗️duży balkon❗️4 pokoje❗️

lokalizacja: Łódź

626 307,00 PLN

8 183,81 PLN

Opis nieruchomości

PROMOCJA! Tylko teraz w super atrakcyjnej cenie! 

To funkcjonalne mieszkanie czteropokojowe, zaprojektowane z myślą o wygodzie codziennego życia - szczególnie dla rodziny, która potrzebuje zarówno wspólnej przestrzeni, jak i prywatnych pokoi dla każdego z domowników.

Centralnym punktem mieszkania jest przestronny salon z aneksem kuchennym i miejscem na duży stół, przy którym bez problemu zmieści się cała rodzina. Z salonu wychodzi się na duży balkon, który w cieplejsze miesiące staje się naturalnym przedłużeniem strefy dziennej i idealnym miejscem na odpoczynek.

Mieszkanie znajduje się na parterze, co dla rodzin z dziećmi jest ogromnym atutem - łatwy dostęp, wygodne korzystanie z tarasu i brak konieczności wchodzenia po schodach. Dużym udogodnieniem są również rolety zamontowane w każdym oknie, które zwiększają komfort, prywatność oraz poczucie bezpieczeństwa.

Układ pomieszczeń jest bardzo praktyczny. Trzy oddzielne pokoje mogą pełnić funkcję sypialni rodziców oraz pokoi dziecięcych lub gabinetu do pracy. Co ważne, okna w pokojach skierowane są na północ, dzięki czemu pomieszczenia są przyjemnie doświetlone, ale nie nagrzewają się nadmiernie w ciągu dnia. Salon z kolei ma ekspozycję zachodnią, co daje dużo naturalnego światła w godzinach popołudniowych i wieczornych.

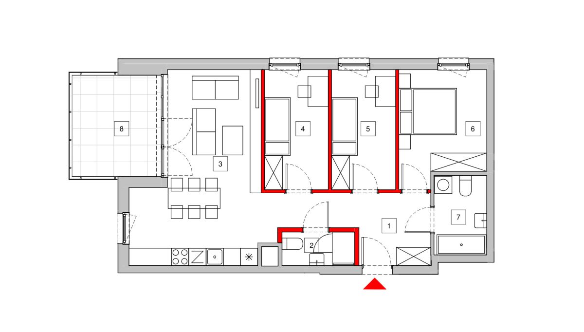
Układ mieszkania obejmuje:
przedpokój - 9,65 m²
pokój dzienny z aneksem kuchennym - 26,50 m² - z wyjściem na loggię
sypialnię - 11,40 m²
sypialnię - 9,23 m²
sypialnię - 9,19 m²
łazienkę - 4,98 m²
drugą łazienkę / WC - 2,91 m²
Powierzchnia loggii: 10,69 m²

Lokalizacja
Osiedle położone jest na Lublinku, w południowo-zachodniej części Polesia — w jednej z najbardziej zielonych i uporządkowanych lokalizacji tej części Łodzi. To rejon ceniony za kameralny charakter, dużą ilość zieleni oraz bardzo dobre warunki do życia.

W najbliższym otoczeniu znajdują się rozległe tereny rekreacyjne, idealne do biegania, jazdy na rowerze i spacerów. W pobliżu zlokalizowany jest Park Uroczysko, a także liczne ścieżki spacerowo-rowerowe, które sprzyjają aktywnemu stylowi życia i codziennemu wypoczynkowi na świeżym powietrzu.

Do mieszkania można dokupić 2 miejsca postojowe w podziemnym garażu!

Skontaktuj się ze mną,
aby otrzymać pełną ofertę dostępnych mieszkań w tej inwestycji.
Zamiast przeglądać dziesiątki podobnych ogłoszeń — otrzymasz konkretne propozycje dopasowane do Ciebie.

Kupujesz bezpośrednio (jestem Twoim doradcą)
Bez prowizji i podatku PCC

Pomagam także w uzyskaniu finansowania na zakup nieruchomości, oferuję pakiety wykończenia wnętrz, dzięki którym możesz odebrać gotowe mieszkanie bez angażowania ekip i tracenia czasu! 

Dzwoń śmiało! Jestem dostępna w godzinach 9:00-19:00.

Plan Nieruchomości

Kontakt do opiekuna:

Platforma Mieszkaniowa S.A

Blanka Gaca
Nieprawidłowy adres E-mail
Administratorem Twoich danych osobowych jest Platforma Mieszkaniowa S.A. Kliknij i dowiedz się więcej o przetwarzaniu Twoich danych, w tym o Twoich prawach i celach przetwarzania.
Mapa