2 pokoje z balkonem spokojna lokalizacja

lokalizacja: Łódź, Pabianka

346 402,00 PLN

10 900,00 PLN

Opis nieruchomości

Funkcjonalne, 2-pokojowe mieszkanie w nowym budynku, zaprojektowane z myślą o komforcie codziennego życia i stabilnym wynajmie. Przemyślany układ bez strat powierzchni sprawia, że lokal jest łatwy w aranżacji i atrakcyjny dla przyszłych najemców.

Planowana data oddania: 2026-08-31

To propozycja dla osób, które szukają bezpiecznej inwestycji lub pierwszego mieszkania w spokojnej, zielonej części miasta.

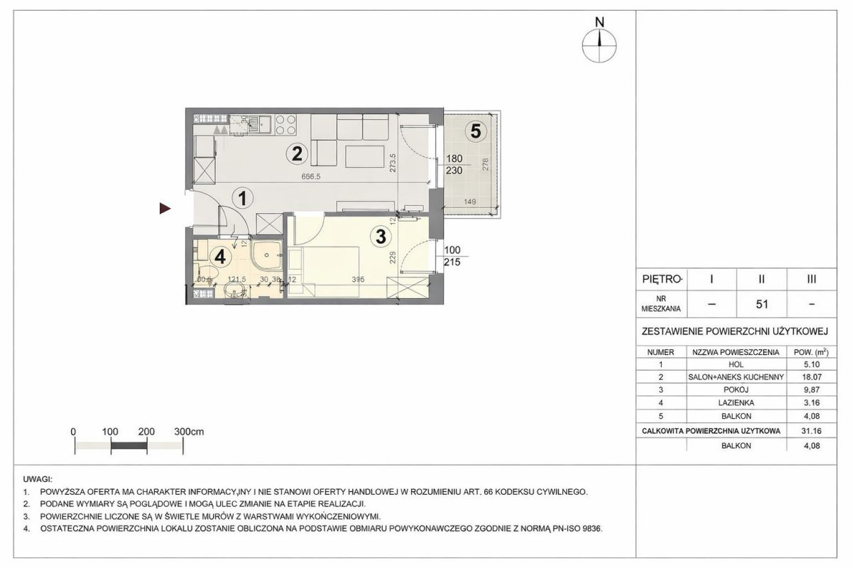
Układ mieszkania:

- salon z aneksem kuchennym (18,67 m²) - jasna, dzienna przestrzeń
- oddzielny pokój / sypialnia (9,87 m²)
- łazienka (3,55 m²)
- hol z miejscem na zabudowę
- balkon 4,08 m² - dodatkowa przestrzeń do odpoczynku

Układ idealnie wpisuje się w potrzeby rynku najmu - 2 pokoje to najbardziej poszukiwany format, zarówno przy najmie długoterminowym, jak i dla singli lub par.

Standard i otoczenie:

Nowa inwestycja o kameralnym charakterze, zlokalizowana w spokojnej okolicy, z dobrym dostępem do infrastruktury miejskiej. W pobliżu tereny zielone, miejsca spacerowe i rekreacyjne, co realnie podnosi atrakcyjność mieszkania w oczach przyszłych użytkowników.

Lokalizacja:

- spokojna, zielona część miasta
- dobra komunikacja z centrum
- w pobliżu sklepy, usługi i codzienna infrastruktura
- lokalizacja chętnie wybierana przez najemców

Dodatkowe informacje:

- komórki lokatorskie: 10 000 zł (sprzedawane dla mieszkań powyżej 60 m²)
- miejsca postojowe: 60 000 zł (sprzedawane dla mieszkań powyżej 40 m²)
- rynek pierwotny - bez podatku PCC

To mieszkanie dla osób, które kupują rozsądnie: dobry układ, nowy budynek i lokalizacja, która będzie pracować na wartość nieruchomości przez lata.

Zadzwoń i zapytaj o szczegóły tego lokalu oraz inne dostępne mieszkania w tej inwestycji.

Wizualizacja:
Zdjęcia prezentują przykładową aranżację wnętrza. Oferta ma charakter informacyjny i nie stanowi oferty handlowej w rozumieniu art. 66 §1 Kodeksu Cywilnego. Mieszkanie sprzedawane w stanie deweloperskim.

Plan Nieruchomości

Kontakt do opiekuna:

Platforma Mieszkaniowa S.A

Sebastian Gabryś
Nieprawidłowy adres E-mail
Administratorem Twoich danych osobowych jest Platforma Mieszkaniowa S.A. Kliknij i dowiedz się więcej o przetwarzaniu Twoich danych, w tym o Twoich prawach i celach przetwarzania.
Mapa