Słoneczne 2 pokoje z dużym balkonem na południe ☀️

lokalizacja: Łódź

333 040,00 PLN

9 200,00 PLN

Opis nieruchomości

Jeśli zależy Ci na funkcjonalnym mieszkaniu z dużą ilością światła i przestrzenią do odpoczynku na ulubionym balkonie - ta oferta zdecydowanie zasługuje na uwagę!

W ofercie posiadam również inne mieszkania w tej inwestycji — o różnych metrażach, układach i cenach. Dzwoń śmiało! Jestem dostępna w godzinach 9:00-19:00.

Kupujesz bezpośrednio (jestem Twoim doradcą)
Bez prowizji i podatku PCC


Lokalizacja
Inwestycja położona jest w spokojnej, zielonej części miasta, która łączy w sobie kameralny charakter z bardzo dobrą komunikacją. W niedalekiej odległości znajdują się przystanki autobusowe i tramwajowe, zapewniające szybki dojazd zarówno do centrum, jak i innych dzielnic miasta.
Dużym atutem lokalizacji jest bliskość terenów rekreacyjnych, w tym popularnych Stawów Jana — idealnego miejsca na spacery, bieganie czy aktywny wypoczynek na świeżym powietrzu. Okolica oferuje również liczne tereny zielone, ścieżki spacerowe i rowerowe. W sąsiedztwie znajdują się sklepy, punkty usługowe, placówki edukacyjne oraz infrastruktura niezbędna do wygodnego życia na co dzień.

Opis inwestycji
Kameralna, nowoczesna inwestycja mieszkaniowa zaprojektowana z myślą o funkcjonalności i wysokim standardzie wykonania. Budynek o niskiej zabudowie, nowoczesnej architekturze i przemyślanych częściach wspólnych. Dla mieszkańców przewidziano miejsca postojowe w podziemnym garażu oraz zewnętrzne. 

Na parterze budynku zaprojektowano lokale usługowe, w których w przyszłości powstanie piekarnia, kawiarnia itp. - co znacząco podniesie komfort codziennego życia. 

To jest inwestycja deweloperska - obecnie w budowie. 
Planowany termin zakończenia prac budowlanych - lipiec 2026r. 
Odbiory mieszkań - sierpień 2026 r. 

Możliwość zakupu miejsca postojowego w garażu lub na terenie, oraz komórki lokatorskiej. 


Opis mieszkania

Przemyślany układ, ustawne pomieszczenia i wyraźny podział na strefę dzienną oraz prywatną sprawiają, że lokal jest komfortowy w codziennym użytkowaniu. Dodatkowym atutem jest południowa ekspozycja okien, dzięki której wnętrza są naturalnie jasne i przyjemnie doświetlone przez cały dzień!

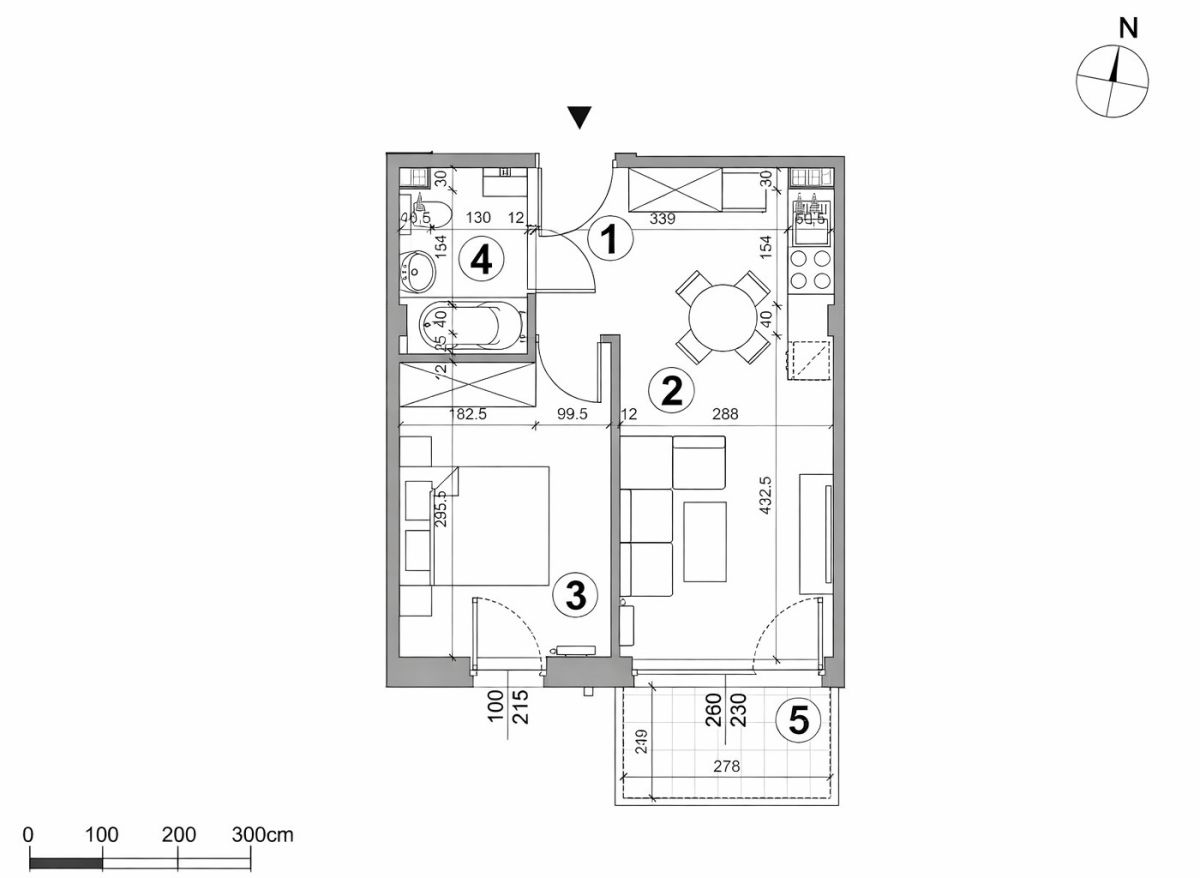
Powierzchnie pomieszczeń:
1. Hol - 2,45 m²
2. Salon z aneksem kuchennym - 18,40 m²
3. Sypialnia - 11,20 m²
4. Łazienka - 3,96 m²
5. Balkon - 4,08 m²

*Prezentowane w ogłoszeniu wizualizacje mają charakter poglądowy i stanowią propozycję aranżacji wnętrza. Lokal sprzedawany jest w stanie deweloperskim.

Szukasz innego piętra? Innego metrażu?
w tej inwestycji mamy także mieszkania 2-u pokojowe o pow. 34m2 - 48 m2. 
Zadzwoń lub napisz a pomogę Ci wybrać opcję, która sprosta Twoim oczekiwaniom! 



Plan Nieruchomości

Kontakt do opiekuna:

Platforma Mieszkaniowa S.A

Blanka Gaca
Nieprawidłowy adres E-mail
Administratorem Twoich danych osobowych jest Platforma Mieszkaniowa S.A. Kliknij i dowiedz się więcej o przetwarzaniu Twoich danych, w tym o Twoich prawach i celach przetwarzania.
Mapa