Ekskluzywne mieszkanie z tarasem i garażem

lokalizacja: Łódź, Stokrotki

1 780 000,00 PLN

13 983,82 PLN

Opis nieruchomości

Poznaj wyjątkową, dwupoziomową przestrzeń stworzoną z myślą o najbardziej wymagających - połączenie nowoczesnej architektury, najwyższej jakości materiałów i lokalizacji, którą trudno przebić. To miejsce, w którym luksus spotyka naturę, a codzienność staje się przyjemnością.

Przemyślany układ, który zachwyca funkcjonalnością

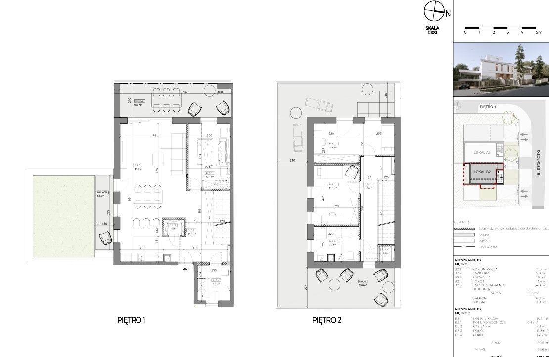
PARTER
• prywatny garaż na dwa samochody z instalacją do ładowania aut elektrycznych - wygoda przyszłości już dziś

I PIĘTRO
• imponujący, jasny salon z jadalnią i aneksem kuchennym - idealny do życia i celebrowania chwil
• funkcjonalna spiżarnia
• komfortowy pokój - gabinet, sypialnia gościnna lub przestrzeń dla dziecka
• balkon i loggia, pozwalające cieszyć się zielenią wokół

II PIĘTRO
• dwa doskonale doświetlone pokoje
• elegancka łazienka
• praktyczny schowek
• duży, prywatny taras - idealny na poranną kawę, wieczorne spotkania czy strefę relaksu na świeżym powietrzu

Standard premium, który czuć w każdym detalu

• aluminiowa stolarka okienna, w salonie przesuwne HS - maksimum światła
• ogrzewanie podłogowe z pompą ciepła NIBE - komfort i energooszczędność
• system rekuperacji - świeże powietrze przez cały rok
• videodomofon, monitoring - bezpieczeństwo i spokój
• inwestycja zakończona i odebrana przez PINB - gotowa do zakupu od zaraz

Lokalizacja, która podnosi jakość życia

Powstało w jednym z najpiękniejszych, najbardziej zielonych zakątków Łodzi. Tuż obok znajdują się Park Julianowski, Arturówek i Las Łagiewnicki - wymarzone miejsce dla miłośników natury, sportu i rekreacji.

Jednocześnie to pełna wygoda miejska na wyciągnięcie ręki. Szkoły, przedszkola, sklepy, restauracje, usługi, centra sportowe - wszystko w najbliższym otoczeniu. A dzięki świetnym połączeniom komunikacyjnym w kilka minut dotrzesz do centrum.

Miejsce, które oferuje więcej niż tylko metry

To inwestycja dla osób, które oczekują komfortu, prestiżu i ponadczasowej jakości. Dla tych, którzy chcą mieszkać nowocześnie, wygodnie, w otoczeniu zieleni, nie rezygnując z udogodnień miasta.

Tu każdy detal ma znaczenie.
Tu codzienność staje się luksusem.
Tu możesz zamieszkać od razu.

Plan Nieruchomości

Kontakt do opiekuna:

Platforma Mieszkaniowa S.A

Sebastian Gabryś
Nieprawidłowy adres E-mail
Administratorem Twoich danych osobowych jest Platforma Mieszkaniowa S.A. Kliknij i dowiedz się więcej o przetwarzaniu Twoich danych, w tym o Twoich prawach i celach przetwarzania.
Mapa