3 pokoje z dużym tarasem 44 m² | idealne do życia i inwestycji
| 54,28 m² | 3 pokoje | 1 piętro | Katowice, ul. Przemysłowa
Na sprzedaż komfortowe mieszkanie 3-pokojowe z ogródkiem 44 m2 (nie jest on na parterze, tylko na 1. piętrze, co zapewnia większą prywatność).
Idealne dla osób, które cenią przestrzeń na zewnątrz oraz funkcjonalny układ wnętrza.
Powierzchnia: 54,28 m²
Powierzchnia: 54,28 m²
Stan deweloperski! Koniec budowy - koniec tego roku!
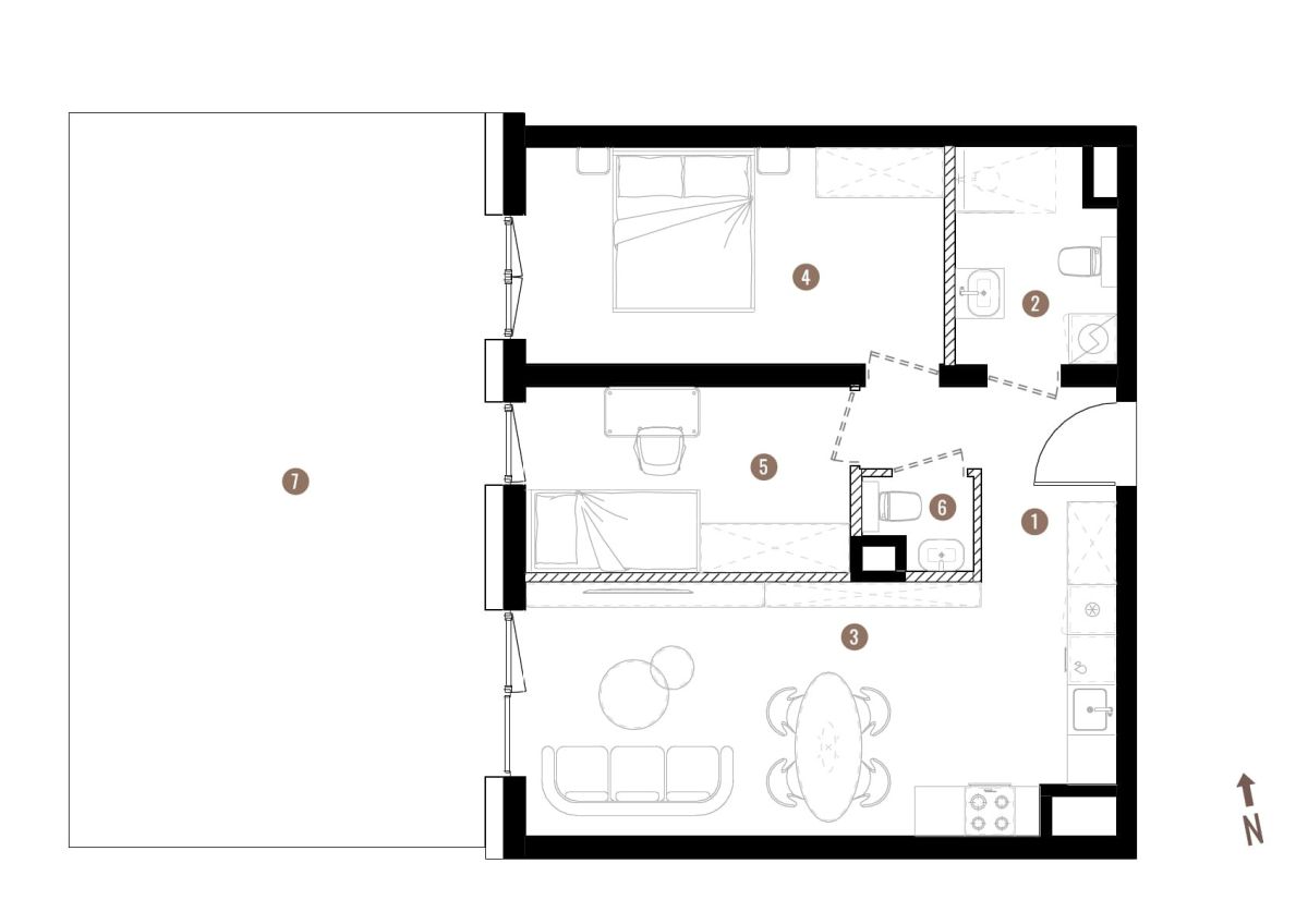
Układ pomieszczeń:
- salon z aneksem kuchennym,
- sypialnia główna,
- dodatkowy pokój (gabinet / pokój dziecięcy),
- łazienka,
- osobne wc,
- przedpokój z miejscem na zabudowę.
Dodatkowe atuty mieszkania:
- ogródek o powierzchni aż 44,09 m² - idealny do relaksu, spotkań i aranżacji zielonej przestrzeni,
- 1 piętro - wygodny dostęp, bez konieczności korzystania z windy,
- bardzo ustawny i funkcjonalny układ,
- duże przeszklenia - dobre doświetlenie wnętrz,
- możliwość aranżacji przestrzeni według własnych potrzeb.
Atuty inwestycji:
- nowoczesna architektura i wysoki standard części wspólnych,
- kameralna zabudowa,
- inwestycja w otoczeniu zieleni, przy Skwerze Holtzego,
- bliskość Doliny Trzech Stawów - idealne miejsce do rekreacji,
- monitoring i podwyższony standard bezpieczeństwa,
- miejsca parkingowe w garażu podziemnym,
- energooszczędne rozwiązania.
Lokalizacja: Katowice, ul. Przemysłowa
Świetne połączenie centrum miasta z terenami zielonymi.
W pobliżu:
centrum Katowic - ok. 5 minut
Dolina Trzech Stawów - kilka minut
Skwer Holtzego - bezpośrednio przy inwestycji
sklepy, restauracje, usługi - w zasięgu spaceru
uczelnie i biurowce - szybki dojazd
komunikacja miejska - wygodny dostęp
Cena: 662 000 zł, 12 196 zł/m²
Układ pomieszczeń:
- salon z aneksem kuchennym,
- sypialnia główna,
- dodatkowy pokój (gabinet / pokój dziecięcy),
- łazienka,
- osobne wc,
- przedpokój z miejscem na zabudowę.
Dodatkowe atuty mieszkania:
- ogródek o powierzchni aż 44,09 m² - idealny do relaksu, spotkań i aranżacji zielonej przestrzeni,
- 1 piętro - wygodny dostęp, bez konieczności korzystania z windy,
- bardzo ustawny i funkcjonalny układ,
- duże przeszklenia - dobre doświetlenie wnętrz,
- możliwość aranżacji przestrzeni według własnych potrzeb.
Atuty inwestycji:
- nowoczesna architektura i wysoki standard części wspólnych,
- kameralna zabudowa,
- inwestycja w otoczeniu zieleni, przy Skwerze Holtzego,
- bliskość Doliny Trzech Stawów - idealne miejsce do rekreacji,
- monitoring i podwyższony standard bezpieczeństwa,
- miejsca parkingowe w garażu podziemnym,
- energooszczędne rozwiązania.
Lokalizacja: Katowice, ul. Przemysłowa
Świetne połączenie centrum miasta z terenami zielonymi.
W pobliżu:
centrum Katowic - ok. 5 minut
Dolina Trzech Stawów - kilka minut
Skwer Holtzego - bezpośrednio przy inwestycji
sklepy, restauracje, usługi - w zasięgu spaceru
uczelnie i biurowce - szybki dojazd
komunikacja miejska - wygodny dostęp
Cena: 662 000 zł, 12 196 zł/m²
Mieszkanie idealne dla osób szukających komfortowej przestrzeni z dużym tarasem w nowoczesnej inwestycji.
Sprawdzi się zarówno do zamieszkania, jak i jako inwestycja.
Zapraszam do kontaktu i umówienia prezentacji.
Zapraszam do kontaktu i umówienia prezentacji.