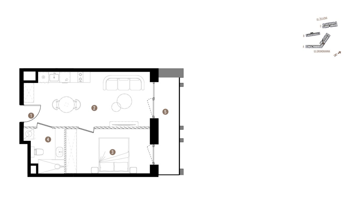
Na sprzedaż nowoczesne, 2-pokojowe mieszkanie w stanie deweloperskim o powierzchni 37,77 m², zlokalizowane na 3- piętrze, przy ul. Grundmanna w Katowicach.
Funkcjonalny układ sprawia, że lokal doskonale sprawdzi się zarówno do zamieszkania, jak i jako inwestycja.
Najważniejsze informacje:
- powierzchnia: 37,77 m²
- liczba pokoi: 2
- piętro: 3
- balkon: 6,39 m2
- standard: stan deweloperski
cena: 457 000 zł - cena promocyjna
Zakup bez prowizji oraz bez podatku PCC.
Dodatkowo istnieje możliwość dokupienia miejsca parkingowego oraz komórki lokatorskiej.
Świetna lokalizacja z szybkim dostępem do centrum miasta oraz pełnej infrastruktury.
Zapraszam do kontaktu po więcej informacji.
2 pokoje | 37,77 m² | Promocja
lokalizacja: Katowice, Wilhelma Friedricha Grundmanna
457 000,00 PLN
12 099,55 PLN
Dane szczegółowe
- Typ transakcji: sprzedaż
- Typ nieruchomości: Mieszkanie
- Lokalizacja: Katowice Koszutka, Wilhelma Friedricha Grundmanna
- Powierzchnia:37,77 m2
- Liczba pokoi: 2
- Piętro: 3 z 7
- Numer oferty: 528499
- Cena: 457 000,00 PLN
- Cena za m2: 12 099,55 PLN
Opis nieruchomości
Kontakt do opiekuna:
Platforma Mieszkaniowa S.A