Mieszkania gotowe, oddane do użytkowania - możliwość wejścia od zaraz!!
Lokalizacja
Gliwice, ul. Pszczyńska, obok Politechniki Śląskiej
Mieszkanie
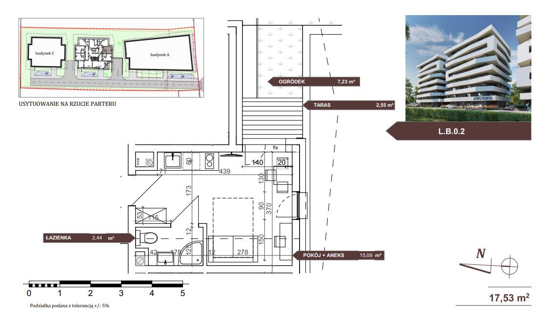
Inwestycyjna Mikrokawalerka o powierzchni 17,53 m2 z tarasem, doskonała na wynajem studentom Politechniki.
Mieszkanie w stanie deweloperskim.
Budynek
Oferowane Mikrokawalerki są budowane w podwyższonym standardzie wykończenia deweloperskiego - wyposażone są m.in. we wszystkie instalacje wewnętrzne, włącznie z grzejnikami, TV/SAT, Internet, wysokiej jakości tynki i wylewki oraz wykończone balkony.
Co wyróżnia projekt
Nowoczesna i elegancka architektura oraz klimat apartamentowca „Royal Studios”
Pralnio - suszarnie do dyspozycji użytkowników
Monitoring całą dobę wraz z recepcją
Podwyższony standard wykończenia deweloperskiego, w tym silikonowe samo oczyszczające się i najtrwalsze tynki zewnętrzne, wszystkie instalacje wewnętrzne, grzejniki, TV/SAT, Internet
Nowoczesna i elegancka architektura oraz klimat apartamentowca „Royal Studios”
Pralnio - suszarnie do dyspozycji użytkowników
Monitoring całą dobę wraz z recepcją
Podwyższony standard wykończenia deweloperskiego, w tym silikonowe samo oczyszczające się i najtrwalsze tynki zewnętrzne, wszystkie instalacje wewnętrzne, grzejniki, TV/SAT, Internet
Posiadamy również w ofercie inne mieszkania w Gliwicach, Katowicach, oraz innych miastach Aglomeracji.
Ponad 50 inwestycji, różne metraże, mieszkania od 1 do 5 pokoi. Zadzwoń i dowiedz się więcej!
Ponad 50 inwestycji, różne metraże, mieszkania od 1 do 5 pokoi. Zadzwoń i dowiedz się więcej!