Dla starszej osoby * Południe * Taras * Ostatnie!

lokalizacja: Gdańsk

665 000,00 PLN

18 129,77 PLN

Opis nieruchomości

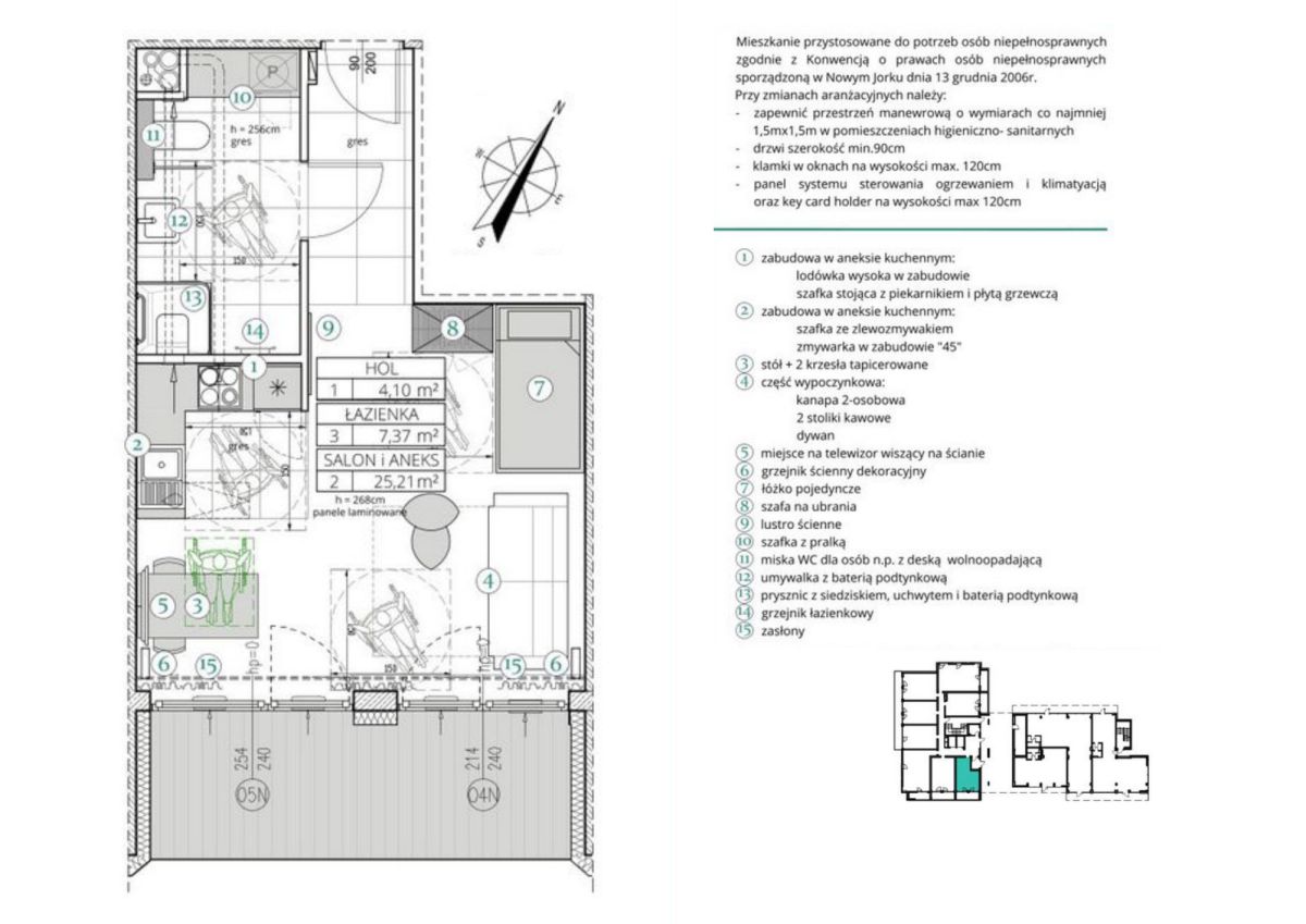
Wyjątkowe południowe mieszkanie dla starszej osoby lub osoby z niepełnosprawnościami na parterze! Pięknie doświetlone! 
Jest to ostatnie mieszkanie tego typu w tej inwestycji!

* Zakup od Dewelopera * Bez prowizji i PCC * Nie współpracujemy z agencjami *

Lokalizacja: Gdańsk Aniołki

Okolica:
Lokalizacja w sercu miasta!
Przystanek tramwajowy i autobusowy - 2 min pieszo * Parki i tereny rekreacyjne * Usługi, sklepy * Wyjątkowa bliskość usług medycznych

Wyjątkowe cechy mieszkania:
• W pełni urządzone - wysoki standard, wyposażone w meble na wymiar. Aneks kuchenny oprócz pełnego umeblowania posiada nowoczesny sprzęt AGD (płyta grzewcza, okap oraz zmywarka, lodówka i piekarnik w zabudowie). Kompleksowe wyposażenie salonu obejmuje rozkładaną kanapę 3-osobową, fotel wypoczynkowy, stoliki kawowe, szafkę RTV.
• Nowoczesny budynek z podziemną halą garażową + usługi w parterach
• Najwyższy standard wykonania
• Zaprojektowane z myślą o detalach - wysokiej jakości architektura oraz funkcjonalność
• Wysokie okna
• Park o powierzchni 3 ha za oknem - z licznymi ławkami, placem zabaw oraz zewnętrzną siłownią
• Ustronna strefa rekreacyjna na terenie inwestycji
Zachodnie mieszkanie na parterze - okazja! 

Korzyści dla Ciebie:
• Zakup od dewelopera - 0% prowizji
• Brak podatku PCC 2% (rynek pierwotny)
• Najlepsze ceny i dostępność mieszkań na dzień dzisiejszy
• Apartamenty inwestycyjne opodatkowane 23% stawką VAT
• Możliwość odliczenia podatku przy spełnieniu określonych warunków

GOTOWE DO ODBIORU!

Cena podana w ogłoszeniu jest ceną netto.
Do ceny należy doliczyć 23% VAT. Możliwość odliczenia podatku VAT uzależniona jest od indywidualnej sytuacji nabywcy oraz celu zakupu.

Umówmy się na 15 min rozmowę i pozwól mi znaleźć idealne mieszkanie dla Ciebie!
Jeżeli czujesz, że to mieszkanie jest dla Ciebie - zapraszam na prezentację - zadzwoń do mnie i zarezerwuj dogodny termin!

Plan Nieruchomości

Kontakt do opiekuna:

Platforma Mieszkaniowa S.A

Anna Burysz
Nieprawidłowy adres E-mail
Administratorem Twoich danych osobowych jest Platforma Mieszkaniowa S.A. Kliknij i dowiedz się więcej o przetwarzaniu Twoich danych, w tym o Twoich prawach i celach przetwarzania.
Mapa