Rodzinne⭐Południowe⭐Standard VIP⭐Duży Ogród

lokalizacja: Cesarzowice

1 449 000,00 PLN

9 073,26 PLN

Opis nieruchomości

 Bezpośrednio od dewelopera! | Dodatkowo 0% PCC! | Gotowe do odbioru! 

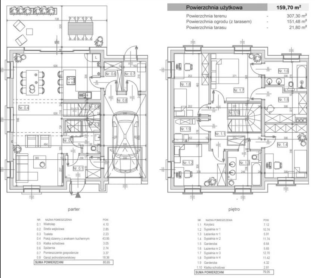
⭐Przestronny dom bliźniaczy - powierzchnia 160 m² z ogrodem i tarasem

W cesarskim stylu, wyjątkowy, nowoczesny dom bliźniaczy o przemyślanym układzie pomieszczeń i wysokim standardzie wykonania. To idealna propozycja dla rodzin poszukujących komfortowej przestrzeni w spokojnej, zielonej okolicy, położonej w dogodnej relacji do terenów miejskich.

⭐Opis nieruchomości

Dom o powierzchni użytkowej blisko 160 m², usytuowany na działce z prywatnym ogrodem i przestronnym tarasem, stwarza komfortowe warunki do codziennego życia i relaksu na świeżym powietrzu. W bryle budynku znajduje się garaż jednostanowiskowy oraz dodatkowe miejsca postojowe. 

⭐ Standard wyposażenia i rozwiązania techniczne

Nieruchomość została zaprojektowana z myślą o komforcie i energooszczędności - wyposażona m.in. w:
✔ Ogrzewanie podłogowe
✔ Pompa ciepła
✔ Rolety zewnętrzne elektryczne
✔ Wysokiej klasy system wentylacji mechanicznej z odzyskiem ciepła (rekuperacja)
✔ Instalację pod montaż paneli fotowoltaicznych
✔ Instalację pod klimatyzację
✔ Garaż i miejsca postojowe w cenie
✔ Rozprowadzenie instalacji alarmowej i monitoring
✔ Wysoki standard stolarki i wykończeń

⭐ Lokalizacja

✔ 3 km od wrocławskiego Oporowa
✔ 4 km od Bielan Wrocławskich
✔ bliskości węzła A8 oraz autostrady A4
✔ C.H. Aleja Bielany - 12 minut
✔ 2km od Parku Zabrockiego



Interesuje Cię inna nieruchomość?
Mam dostęp do ofert z wielu inwestycji realizowanych we Wrocławiu i w jego okolicach. Z przyjemnością pomogę w wyborze mieszkania lub apartamentu najlepiej dopasowanego do Twoich potrzeb.

Pełne wsparcie przy zakupie
Przeprowadzam klientów przez cały proces zakupu - od wyboru i rezerwacji lokalu, poprzez pomoc w uzyskaniu finansowania oraz analizę prawną, aż do finalizacji umowy z deweloperem. Zapewniam rzetelne doradztwo i opiekę na każdym etapie współpracy.


UWAGA!
*Wizualizacja przedstawia przykładową aranżację wnętrza. Niniejsze ogłoszenie ma charakter informacyjny i nie stanowi oferty handlowej w rozumieniu art. 66 §1 Kodeksu Cywilnego.

Plan Nieruchomości

Kontakt do opiekuna:

Platforma Mieszkaniowa S.A

Kacper Kruk
Nieprawidłowy adres E-mail
Administratorem Twoich danych osobowych jest Platforma Mieszkaniowa S.A. Kliknij i dowiedz się więcej o przetwarzaniu Twoich danych, w tym o Twoich prawach i celach przetwarzania.
Mapa