Gotowy dom w promocyjnej cenie! | Zieleń

lokalizacja: Wrocław

875 000,00 PLN

9 114,58 PLN

Opis nieruchomości

 Jako Doradca ds. Nieruchomości zapewnię Ci pełne wsparcie w zakupie nieruchomości.
Nie płacisz za moją obsługę! - moje wynagrodzenie pokrywa deweloper.
Pomogę Ci na każdym etapie: od wyboru nieruchomości, przez kredyt, aż po odbiór kluczy.
Zadzwoń, znajdę dla Ciebie to czego szukasz! - mam dostęp do ponad 100 inwestycji deweloperskich!


~~Nowoczesny dom w zabudowie szeregowej - zielona część Wrocławia!~~

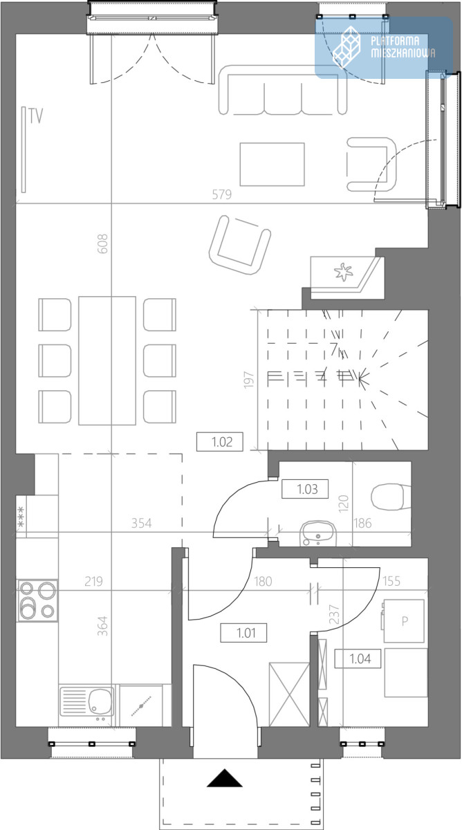
Powierzchnia domu: 96 m² doskonale zaprojektowanej przestrzeni
Działka 165m² 
Stan deweloperski lub wykończone pod klucz!
Inwestycja oddana do użytkowania!

Najważniejsze zalety nieruchomości:

✅ Nowoczesna architektura - elegancka zabudowa jednorodzinna od sprawdzonego dewelopera
✅ Ekologiczne rozwiązania - pompa ciepła Viessmann z funkcją chłodzenia, panele fotowoltaiczne
Ogrzewanie podłogowe - komfort i energooszczędność
Twój własny ogród - wykorzystaj go jak chcesz!
Smart Home - możliwość zdalnego sterowania instalacjami
Przygotowanie pod kominek - stwórz w salonie ciepły, rodzinny klimat
Elektryczne rolety zewnętrzne - zwiększona prywatność i bezpieczeństwo
Dodatkowa przestrzeń na strychu - idealna do przechowywania
Ogrody deszczowe - szeregi domów na osiedlu oddziela pas zieleni w którym będą liczne nasadzenia
2 lub 3 miejsca postojowe dla Ciebie w cenie!
✅ Opcja wykończenia pod klucz - zamieszkaj od razu!

Lokalizacja, która spełni Twoje oczekiwania:

Bliskość AOW, S5 i Obwodnicy Śródmiejskiej - szybki dojazd do każdej części miasta
Komunikacja miejska - przystanek autobusowy w pobliżu
Sklepy i usługi - Biedronka, Dino, Żabka, CH Marino
Tereny rekreacyjne - idealne na spacery i aktywność na świeżym powietrzu
Szkoła i przedszkole - nowoczesny kompleks edukacyjny w pobliżu


PROMOCYJNA CENA 875 000zł - tylko jeden dom!
Cena za szereg środkowy, stan deweloperski, działka 169m2.

Dostępne są także szeregi skrajne, domy z większymi działkami a także wykończone pod klucz.



Kupując ze mną, nie płacisz prowizji ani podatku PCC- oszczędzasz ponad 2%!
Nie czekaj - taniej już nie będzie!

Aleksander Pantak - Specjalista ds. nieruchomości
Nie marnuj czasu na samodzielne szukanie wymarzonej nieruchomości w setkach ofert - skontaktuj się ze mną, zrobię to za Ciebie za darmo!

Wyślij mi wiadomość przez portal lub zadzwoń, aby dowiedzieć się więcej i umówić się na darmową prezentację!





*Wizualizacja na zdjęciu przedstawia przykładowy sposób aranżacji wnętrza. Powyższa oferta ma charakter informacyjny i nie stanowi oferty handlowej w rozumieniu art. 66 §1 Kodeksu Cywilnego.

Kontakt do opiekuna:

Platforma Mieszkaniowa S.A

Aleksander Pantak
Nieprawidłowy adres E-mail
Administratorem Twoich danych osobowych jest Platforma Mieszkaniowa S.A. Kliknij i dowiedz się więcej o przetwarzaniu Twoich danych, w tym o Twoich prawach i celach przetwarzania.
Mapa